참여마당
질의응답
본문 시작
- 저속한 표현, 특정인 비방, 상업적 내용, 불법선거 등은 예고 없이 삭제될 수 있습니다.
- 주민번호 등 개인정보는 사생활 침해나 부당하게 이용될 수 있으니 주의하시기 바랍니다.
정보통신망 이용 촉진 및 정보보호등에 관한 법률 제44조
제목
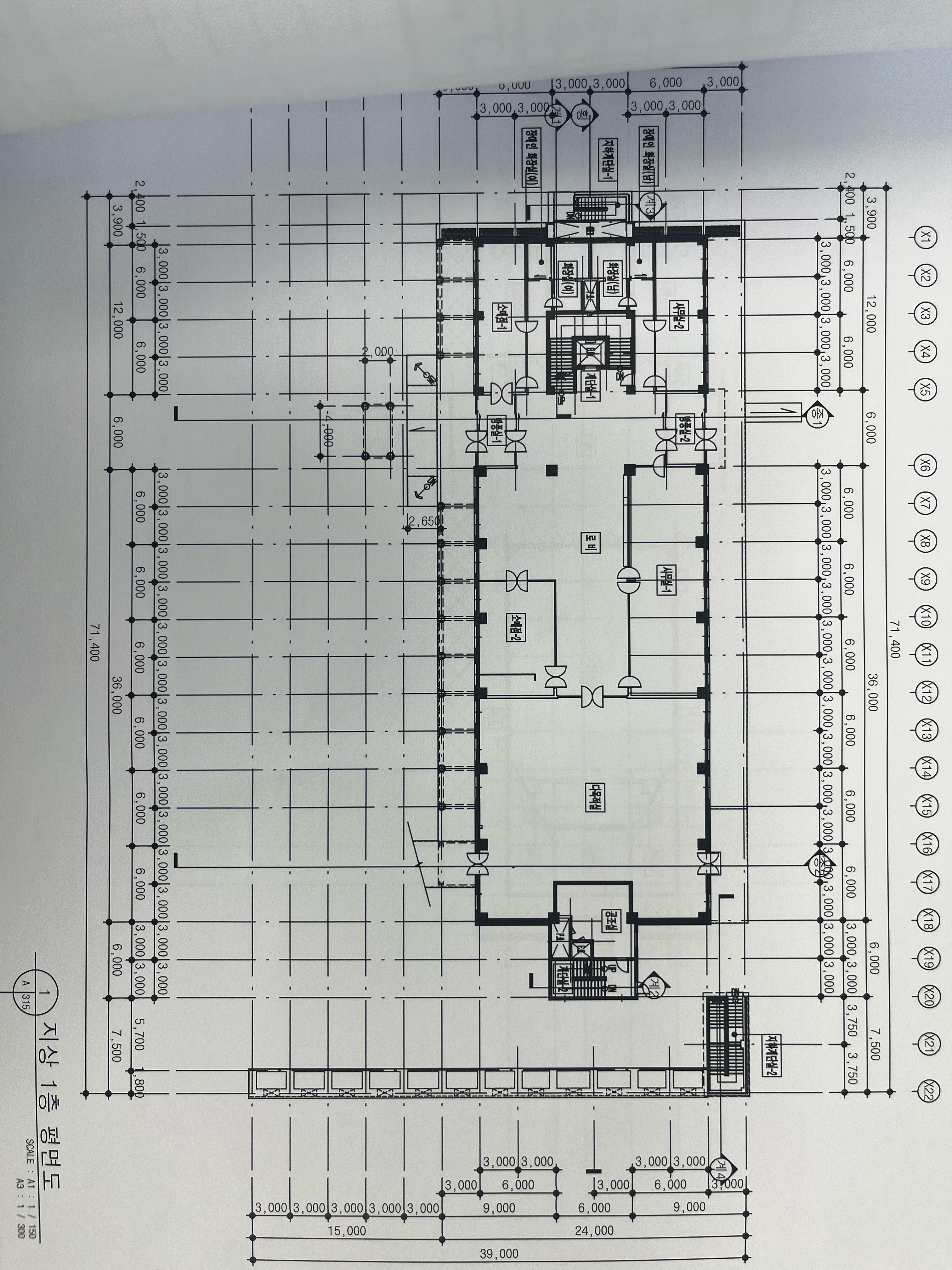
공조실 석면 철거 후 벽면 마감 관련 문의
작성자
윤금주
등록일
2025-04-01
조회수
541
내용
안녕하십니까
노유자시설, 제2종근린생활시설인 건물에서 공조기실 벽면을 석면 철거할 계획이 있습니다.
공조기실 벽면 석면을 철거 후 유리섬유,경량 찬넬을 제거하면 벽면 콘크리트(10mm시멘트몰탈 초벌)만 남는 상태에서 마감을 하지 않아도 소방법에 위반 되지 않는지 알고 싶습니다. 아니면 방화석고보드 등으로 철거 뒤 바로 내부 마감을 해야하나요?
공조기장비로 인해 마감공사을 하기에는 장소가 협소합니다.
노유자시설, 제2종근린생활시설인 건물에서 공조기실 벽면을 석면 철거할 계획이 있습니다.
공조기실 벽면 석면을 철거 후 유리섬유,경량 찬넬을 제거하면 벽면 콘크리트(10mm시멘트몰탈 초벌)만 남는 상태에서 마감을 하지 않아도 소방법에 위반 되지 않는지 알고 싶습니다. 아니면 방화석고보드 등으로 철거 뒤 바로 내부 마감을 해야하나요?
공조기장비로 인해 마감공사을 하기에는 장소가 협소합니다.
첨부파일
